Casa View, Kentucky Club de Campo, Rosario - Argentina
Situada en las afueras de Rosario -en el paisaje pampeano argentino- la Casa View está diseñada a partir de las posibilidades y las limitaciones de nuevos usos residenciales en áreas tradicionalmente rurales.
El solar de 2113 m2 tiene una privilegiada posición periférica en esquina frente a un gran monte de eucaliptos.
La casa se concibe como un objeto sensible posado la llanura; posee una lógica propia pero es capaz de informarse y relacionarse con las características específicas del lugar.
Está condicionada por dos deseos contradictorios:
1. establecer relaciones entre los espacios interiores domésticos y la escala del paisaje.
2. lograr condiciones de privacidad visual con respecto a futuras casas vecinas.
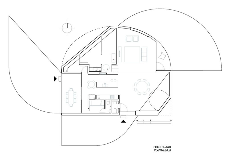
La percepción del paisaje circundante organiza el programa como una sucesión de espacios continuos en una espiral ascendente de 360° que acompaña el desarrollo del horizonte. Estos espacios conforman una masa compacta de dos niveles con una pisada pequeña sobre el suelo. La complejidad formal y tectónica de la casa resulta de la repetición de cuatro erosiones geométricas alternadas en cada cuadrante de la masa que refuerzan el sentido rotacional del proyecto y colaboran también con las demandas tectónicas de la envolvente de hormigón. En estos vértices, la masa se comprime hacia abajo o bien despega del suelo, percibiéndose como leve o pesada a medida que se la rodea.
Las fachadas son una sucesión dinámica de superficies continuas y desjerarquizadas donde cada plano de fachada se va transformando sucesivamente en principal y deja ver superficies oblicuas que anticipan la fachada siguiente.
Como resultado de enmarcar las mejores vistas del paisaje y prever la ubicación de futuras casas vecinas las aberturas toman una disposición rotacional y alternada, comenzando con la galería de acceso en planta baja hacia el oeste, y culminando en la ventana de la habitación principal que mira hacia el este y hacia el monte de eucaliptos. En la definición de las aberturas también se ha tenido en cuenta la reducción de demandas energéticas al controlar su receso con respecto a la fachada, facilitar ventilaciones cruzadas y proveer luz natural. Al variar en orientación, altura y profundidad, cada abertura captura un tipo de luz y visión distinta del paisaje, proporcionando una variedad de relaciones entre interior y exterior.
Interiormente, la sucesión de operaciones formales y el encuadre de las aberturas causan impresiones volumétricas y visuales que tensan el espacio en el sentido de la circulación y conforman un paisaje interior continuo de superficies, vistas y efectos lumínicos.
La cáscara de hormigón exterior se construyó utilizando técnicas locales -habituales en la construcción de silos- y su terminación rústica expone las marcas de su ejecución. En contraste, el interior de la casa es delicado y suave. Los pisos graníticos pulidos de la planta baja se distinguen de las paredes y cielorrasos sólo por su reflectividad. Los marcos de aluminio anodizado negro enmarcan los tonos verdes y azules del paisaje, que contrastan con la atmósfera interior y la tiñen levemente. En los espacios más íntimos de la planta alta los pisos se cubren con madera de Lapacho, creando un nuevo contraste con las paredes y cielorrasos.
Como culminación del recorrido de la casa, una escalera exterior de hormigón conduce a un mirador panorámico en la terraza desde donde el paisaje circundante se redescubre en su totalidad, desde una nueva altura.
Casa View
Ubicación: Rosario, Argentina (Kentucky Club de Campo)
Proyecto: 2004-2005
Construcción: 2006-2009
Superficie del Terreno: 2113 m2
Superficie Cubierta: 296 m2
Superficie Semi Cubierta: 65 m2
Arquitectos: Diego Arraigada, Mark Lee, Sharon Johnston
Colaboradores: Juliana Esposito , Jeff Adams, Pablo Gamba, Nazarena Infante, Nadia Carassai, Anne Rosenberg, Anton Schneider
Cliente: Lucas Ma
Ingeniero Estructural: Ing. Gonzalo Garibay
Empresa Constructora: MECSA , Ing. Gustavo Micheletti
Materiales:
Exterior de hormigón visto de tablas.
Carpinterías de aluminio anodinado negro.
Interiores de yeso artesanal.
Pisos de hormigón llaneado y mosaicos graníticos pulidos.
Madera de Lapacho.















0 Comentarios:
Publicar un comentario
Escribe tu comentario.